
【 店舗・事務所・ビル 】高崎駅直結のビルです!テナント様専用貸会議室(モニター付き)あります。事業内容ご相談可能です◎賃料等詳細はお問い合わせください。
| 最寄駅 | 所在地 | 間取り | 面積 | 賃料 管理費等 | 敷金 礼金 |
|---|---|---|---|---|---|
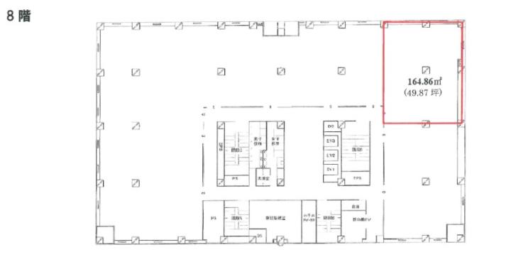
JR高崎線 高崎 徒歩1分 | 高崎市八島町58-1 | 1 R | 164.84 ㎡ | NaN 円 NaN 円 | 12ヶ月 - |
物件写真・間取り
物件概要
| 物件名 | ウエスト・ワンビル 8階 |
|---|
| 交通機関 | JR高崎線 高崎 徒歩1分 |
|---|
| 建物構造 | 鉄骨造 |
|---|
| 所在階 / 階数 | 13階建/7階部分 |
|---|
| 住宅保険 | 加入要 |
|---|
| 契約期間 | 2年 |
|---|
| 引渡 | 相談 |
|---|
| 現況 | 空家 |
|---|
| 設備・条件 | EV4基 個別空調 敷地内喫煙スペース 24時間対応機械警備 |
|---|
| 備考 | 親切丁寧にご対応させていただきます。 |
|---|
| 取引態様 | 媒介 |
|---|
| 物件番号 | 2534 |
|---|




















